1. 综合布线系统 综合布线是一套高度模块化、灵活的传输通道,负责将语音、数据、监控、控制等设备与信息管理系统连接起来,并连接到外部通信网络。系统由传输介质、连接硬件(...
- 项目编号:1405212023CDY00155 - 项目名称:沁水县公共安全视频监控综合管理服务共享平台之社会治安视频监控系统工程运行维护服务 中标信息 - 中标结果:公共安全视频监控综合管理服...
引言 在项目招标阶段,设计院通常会提供用于预算的智能化弱电CAD图纸。但这些图纸多是用于预算参考,实施阶段需要现场深化设计。设备位置、类型、线缆走向及图标符号的规范化需...
1、能源消耗高 2、人工成本高 3、厂区安全隐患较多 4、网络覆盖不足 5、会议系统不完善 6、其他运营短板 二、百实厂区智能化弱电工程解决方案项目概述 1、项目目标:通过智能弱电...
这样的需求推动了会议系统走向有序化与高效化的综合解决方案,成为当今最具现实意义的会议组织工具之一。我们将其称为第三代会议系统,亦被称作智能会议系统。 多媒体会议系统...
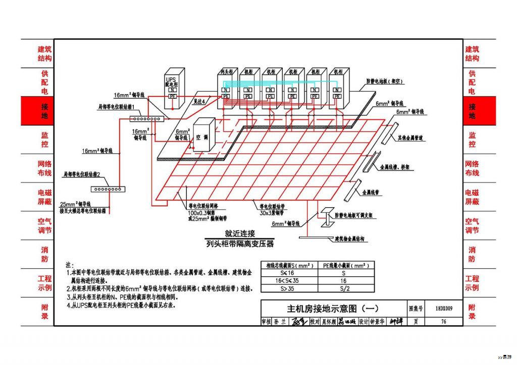
机房是大楼安全与数据运行的核心区域,承载着服务器、通信与网络设备的正常运作,其运行的稳定性直接影响分行的信息管理与数据安全。因此,机房的基本结构与组合需满足防尘、...
上海 | 上海市徐汇区零陵路583号27楼
成都 | 成都市温江区成都海峡两岸科技产业开发园青啤大道319号中小企业孵化园13栋1单元4楼
Copyright © 2025 上海yy易游网络科技股份有限公司 版权所有